

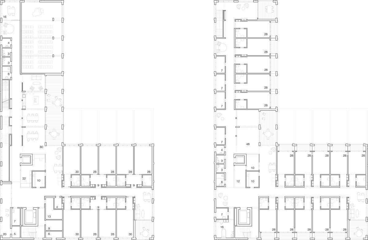
Wettbewerb Seniorenzentrum Herisau
Die Nachfrage nach Betreuungsplätzen übersteigt das Angebot, v.a. weil ein Bestandsgebäude einer anderen Nutzung zugeführt wird. Es soll also ein Erweiterungsbau mit 60 Betten geplant werden. Zur Verfügung steht ein spitz zulaufendes Grundstück auf der Rückseite des Bestandsgebäude, wo sich die Anlieferung befindet. Dort muss auch ein Geländeversprung überwunden werden. Die Erweiterung orientiert sich in der Volumetrie am Bestand und nimmt einen respektvollen Bezug auf zu den umliegenden, recht unterschiedlichen Siedlungsstrukturen. Ausserdem lässt es genügend Platz für einen qualitätvollen Aussenraum.







