Projekte
Projekte
Büro
Team
Kontakt
Fuchs Architekten AG
Räffelstrasse 32
8045 Zürich
043 960 20 60
mail@fuchs-architekten.ch
Routenplaner
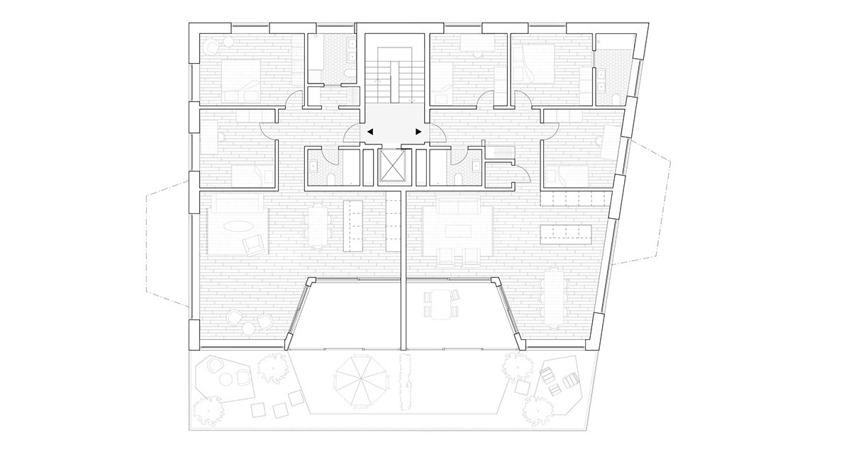
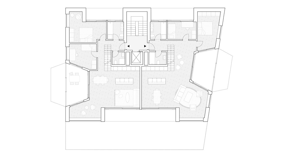
Neubau MFH Illnau Soorhalde